Marca:
Codice:
Descrizione:
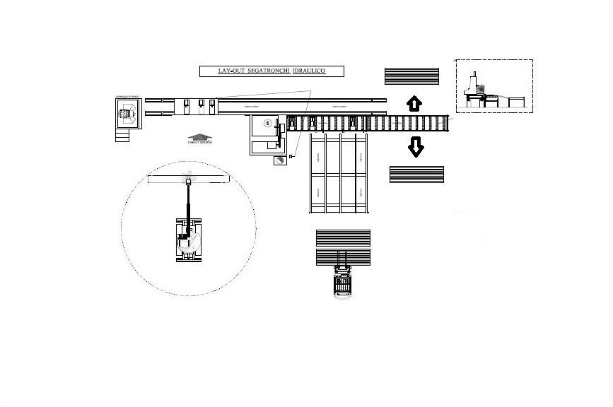
Segatronchi a nastro verticale Mod. ST 140 anno 2000 a norma CE
Basamento in acciaio di grosso spessore
Diametro volani mm 1400
Fascia Volani mm 190
Dimensione della lama 206x1,47 o 1,65x9750
Tendilama idraulico
Inclinazione elettrica del volano superiore
Freno idraulico a disco sul volano inferiore
Protezione-riparo lama e volano superiore
Pompa automatica gasolio lubrificazione lama e volani temporizzata
Tappeto di catene multiple sul basamento sega tronchi
Potenza motore principale Kw 75 Hp 100
Quadro elettrico partenza stella triangolo.
Carrello Portatronchi Idraulico Artiglio Modello CI 900
3 morse idrauliche-Chiusura idraulica dei ganci
Apertura trasversale morse dalla lama mm 900
Apertura max. ganci mm. 900
Distanza Morse 1100 – 1800 mm
Uscita idraulica del gancio da 15 a 125 mm
Divisore degli spessori elettronico collegato ad un controllo asse per inserimento di spessori predisposti e programmi di taglio modello MUDATA
Giratronchi elettro-idraulici a catena
Avanzamento idrostatico
Impianto di lubrificazione centralizzato ed automatizzato
Centralina comandi a doppia postazione con sedia: mediante due manipolatori multifunzione vengono comandate tutte le funzione del carro. Libere sedi per l’istallazione di meccanizzazioni di completamento. Cavi elettrici - Rotaie piane e profilate
Meccanizzazione BFB
Rulliere di scarico con struttura di grosso spessore
1° Rulliera composta da n.02 Flipper per il sostegno della tavola in fase di taglio
Catena di scarico a scomparsa con possibilità di scarico fino a 4,5 metri
Larghezza del rullo 1300mm
Spazzola
Catene di ripresa del tronco
2° Rulliera di scarico a catene trasfert e scarico DX – SX
Lunghezza totale metri 5
N.04 catene di scarico con distanze 1000 – 600 – 900 mm
Larghezza mm 1300

















